This page has only been added to ensure this data stays available. Full credit for this information goes to the owners of ch601.org
ANGLE OF ATTACK METER
The “Lift Reserve Indicator” has been referred to as an angle of attack meter, a lift management system and an air speed system. It is probably all of the above.
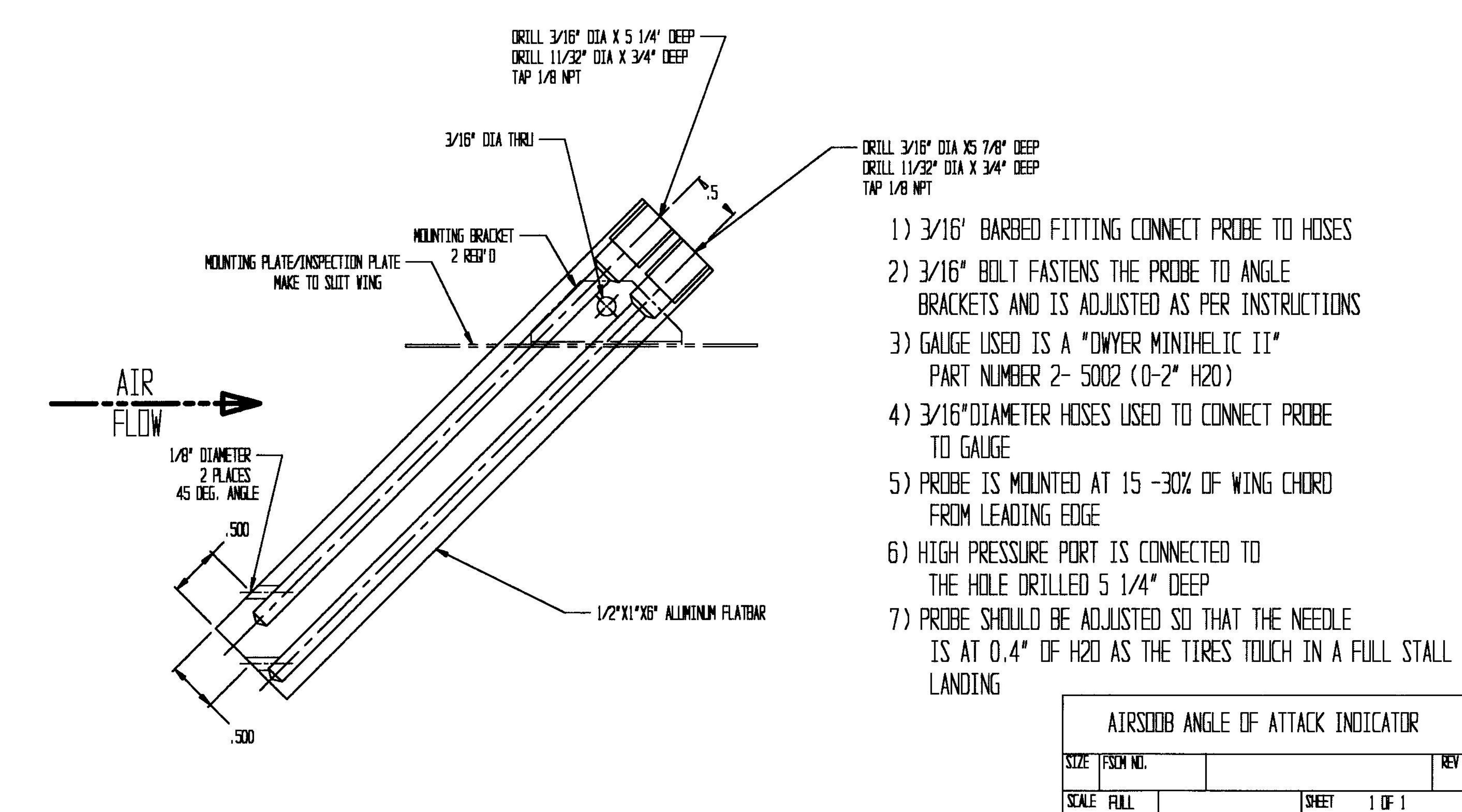
The lift reserve indicator we are talking about is similar to the instrument known commercially as the LRI Lift Reserve Indicator. It consists of a rectangular shaped air stream probe and a commercially available differential pressure gauge. There are two air pressure ports, each on separate faces of the probe. The differential pressure between the two ports yields lift reserve readouts. The high pressure port on the gauge is connected to the top surface port.
The gauge used is a “DWYER MINIHELIC II” pressure gauge. Part number 2-5002.This gauge reads 0-2” of water column. The gauge face is removable and is modified by LRI tp have 3 separate zones.( see my version below) The first zone is the “red zone” which is from 0 to .5” of water. The second zone(white or yellow) goes from .5” to 1.0” of water. The third zone is from 1.0” to 2.0” of water column.
The red zone indicates that the airplane is no longer generating enough lift to sustain level flight The top of the red sector and the bottom of the white or yellow sector is the point that wing is generating “just” enough lift to support the aircraft. During takeoff as the needle clears the red sector and moves into the yellow sector the plane has enough lift for takeoff. On landing the goal is to get the tires to just touch the runway when the needle is one mark from the top of the red sector.(0.4”)You will rotate the probe and repeat landings until the needle is at this point. The probe position should be marked in this position so that it will be evident during a preflight if it has moved.
The white or yellow sector is the slow speed region of the aircraft The final approach on landing is flown with the needle centered in the white or yellow zone. The turn to final should be done with the needle no lower than the white/ green zone.
The green zone is the region where there is ample lift and the needle will most probably pegged.(4.0”)
The location of the probe should be out of the prop wash and located between 15% and 30% of the wing chord as measured from the leading edge. The angle to start is recommended to be about 50 degrees from the bottom of the wing. A Cessna 172, that was fitted with this device had the probe at 69.5 degrees from the bottom of the wing surface. You will have to determine this on your own plane.
They recommend that the gauge be mounted at the top left portion of the instrument panel so that the eyes don’t have to move far from where they look during the landing phase.
Below is what the gauge face should look like.
Feel free to copy it.
The diagram looks kinda ratty, but it prints out OK. Just the below image and “save file as”. Then use your favorite viewer to resize and print.
Talk recently on the list re LRI’s. Some have previously made comments about the odd size of the Dwyer minihelic gauge that is specified in the plans . Out of curiosity, I found a rectangular 0-2″ differential pressure gauge. The model I found that would be best suited for use is the DG87841-1C in the 500Pa range (500Pa = 2″ wc). It is more expensive than the Dwyer gauge, but some may want/prefer the rectangle shape. The price quote I received from the distributor was $96.50 ea. It is available in vertical or horizontal mounting. The DG87841 is vertical and the DG87641 is horizontal. There is also a nearly identical unit available from Manostar, but it was quoted at $120.
For tips on installing the LRI see Sam Buchanan’s RV Journal.

